Boutique The Frankie Shop au 7 rue Saint-Claude, Paris III, France

  • Livré en 2022
  • MOA : The Frankie Shop
  • Architecte mandataire : SAME architecte
  • SDP : 64.5m²
  • Coût : 150k€HT

Crédits photos : 11h45

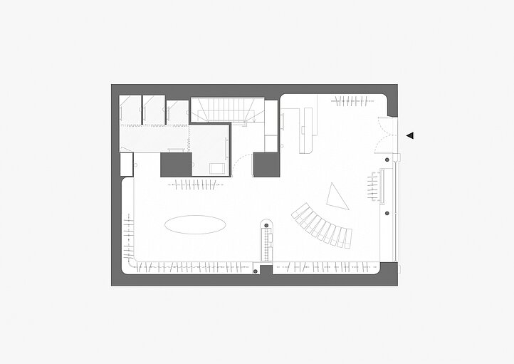
Le projet porte sur le réaménagement d’un local commercial au 7 rue Saint Claude dans le 3e arrondissement de Paris, au cœur du quartier du Marais, non loin de l’Eglise Saint-Denys du Sacrement. Le local prend place à RDC et sous-sol d’un bâtiment de 7 niveaux.

En façade, le revêtement extérieur et le soubassement en pin marine peint sont blancs pour refléter l'identité de la marque.

Au RDC, la salle est composée de deux zones de vente, d’une zone d’essayage et d’une zone d’arrière-caisse dédiée au personnel. Un travail de conception a été fait sur le mobilier afin de reprendre les codes de la marque tout en la développant en se réinventant dans les formes. Le sol de la boutique est en béton ciré millimétrique. Toute la boutique dispose de doucines d'angle afin d'adoucir la perception de l'espace et de faire de cette boutique un espace confortable et organique et d'amener un effet cocon au lieu.

La première zone de vente, attenante à l'entrée, est visible depuis la rue. Elle permet d'identifier l'identité de la boutique depuis l'extérieur. A l'intérieur se développent plusieurs aménagements et pièces de mobilier sur mesure :

  • Caisse en face de l'entrée : Meuble caisse polyvalent en bois plaqué noyer avec les surfaces supérieures peintes en blanc finition laqué. Le meuble sert à la fois de caisse au commerce, mais aussi de showcase avec des vitrine d'exposition, et d'espace de plan de travail et pliage de vêtements.
  • Les portants sont composés d'un assemblage de tubes métalliques fixés au plafond et encastrés au sol, en acier peint finition blanc laqué. Ils sont donc pleinement intégrés au lieu, habillent les murs et créent dans le même temps un second niveau de lecture dans la profondeur des murs.
  • Cimaise existante derrière la façade : partiellement conservée et peinte en blanc, elle se place comme support de l'enseigne en lettrage peint. Les poteaux existants sont aussi conservés et peints en blanc.
  • Un meuble podium à l'entrée, entre la cimaise et la façade, permet de dissimuler la technique (climatisation) tout en devenant support d'exposition.
  • Une table en onyx, placée au centre de l'espace, sert de présentoir.

La seconde zone de vente est plus en retrait du front de rue et permet de créer un espace plus intime. Pensé comme un salon, cet espace dispose du même système de portants que dans la première zone de vente.

  • Les deux zones de vente sont délimitées par un séparateur : Ce caisson se présente comme un claustra, composé par des ventelles en bois plaqué noyer.

La troisième séquence, en fond de boutique, se compose de 4 cabines ainsi que d'une grande zone miroir aménagée en sortie de cabine.

  • Le hall miroir permet une transition entre la zone de vente attenante et les cabines d'essayage.
  • Chaque cabine est composée d'assises en noyer, d'un habillage miroir toute hauteur sur le mur du fond, et de patères en bois. Les cabines sont fermées par des  rideaux noirs finition satin.

La dernière zone est à la fois un espace de stockage et de repos pour le personnel, mais devient aussi l'accès vers l'espace privé au sous-sol.

  • Le premier sous-sol, uniquement accessible au personnel, est desservi par un escalier en métal chromé noir.
  • Une salle dédiée au personnel et des sanitaires ont été créés au sous-sol.